泰国偶遇洪欣,又高又瘦,白的发光 52岁的颜值气质都无可挑剔!

高清图片下载 免费 安全无风险
泰国偶遇洪欣,又高又瘦,白的发光 52岁的颜值气质都无可挑剔!

泰国偶遇洪欣,又高又瘦,白的发光 52岁的颜值气质都无可挑剔!

点击图片查看原图

图片信息

  • 格式: JPG
  • 尺寸: 640x485
  • 大小: 约1.2MB

版权声明

相关标签

自然风光 高清壁纸 4K画质

分享图片

相关推荐

基于当前图片的相似推荐

洪欣也被网红滤镜坑了晒素颜自拍竟撞脸袁咏仪

影视剧中港姐袁咏仪和洪欣到底有多像谁更美一些

演员洪欣:和前男友生下儿子,嫁小10岁丈夫,幸福美满

明星张丹峰和洪欣现状如何(张丹峰和洪欣个人资料) - 细雨网

她似乎确实没底气|蔡少芬|袁咏仪|朱茵_网易订阅

被李嘉欣骂"蠢女人"的洪欣,打醒了多少为爱痴狂的女孩?

当港姐冠军演古装美人,有的惊为天人,有的却格格不入让人出戏

罗兆辉怀揣着对袁咏仪的深深倾慕,不惜花费重金请人牵线,终于得以与她

如果是蔡少芬或者袁咏仪这样的强硬派,毕滢这个女助理早就被清除出

洪欣48我信袁咏仪48我信朱茵48我也信她48真不信

素颜更好看,女儿很漂亮,长得好像袁咏仪.

黑幕?香港小姐时隔20年再出神仙颜值,10号绝美身姿却进不了前3

随机推荐

发现更多精彩图片

蔡少芬遭绑架张晋不着急两夫妻假拌嘴

同样是没进豪门,把梁洛施与吴佩慈放在一起,差别就出来了

张铭恩 张日山 张副官 老九门

takemehigher迪迦奥特曼主题曲简谱需改编

国内颜值最高十位男星最帅男明星排行榜2022

新手必会的10首简单的吉他谱(2)

火男面具祭在日本为庆典如成人祭

24岁帅小伙全脸烧烫伤毁容满脸疤痕治疗效果分享

一只举起的手握着拳头干劲十足的加油手势

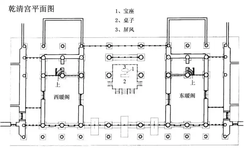
求康熙四十一年起居住在畅春园的具体时间 时长 求乾清宫布局介绍

男人一定要娶的富贵命女