定制各省市监狱服囚服劳改服犯人衣服看守所马甲看守所服装

高清图片下载 免费 安全无风险
定制各省市监狱服囚服劳改服犯人衣服看守所马甲看守所服装

定制各省市监狱服囚服劳改服犯人衣服看守所马甲看守所服装

点击图片查看原图

图片信息

  • 格式: JPG
  • 尺寸: 1080x1080
  • 大小: 约1.2MB

版权声明

相关标签

自然风光 高清壁纸 4K画质

分享图片

相关推荐

基于当前图片的相似推荐

监狱犯人一年四季都只穿那一套衣服,冬天不冷,夏天不热吗?

罪犯如何改造?带你体验"监狱的一天"……_服刑人员

监狱服装定做,我们的囚服生产厂家提供安全可靠的囚服,保护您的 - 抖

囚服 犯人服装 服刑人员服装 看守所囚服马甲 拘留所马甲监狱床上用品

揭秘高墙内的真实生活:服刑人员改造生活全透视(图)

监狱第一天,服刑人员会经历什么?|囚服|入监|监规_网易订阅

成都监狱服定做 成都囚服定做 四川订做犯人服装

王武监狱全面启动罪犯规范化专项教育活动

服刑人员在监狱里一年四季都穿什么衣服?

监狱规定服刑一年是多少天

囚犯衣套装看守所监狱秋冬成人囚服男女监狱表演舞台剧演出道具服装

随机推荐

发现更多精彩图片

12款"两边铲光"男士发型,渐变的鬓边,清爽又帅气

陈慧琳老公刘建浩个人资料

易烊千玺签名照_易烊千玺_娱乐_明星娱乐资讯

组图:港媒爆周星驰结束十年情 于文凤已有新欢

小品舞台背景蓝色漂亮明亮的闪光灯散焦舞台聚光灯bokeh抽象背景与

头像女qq头像超拽霸气-超拽头像-爱聚微信qq空间大杂烩

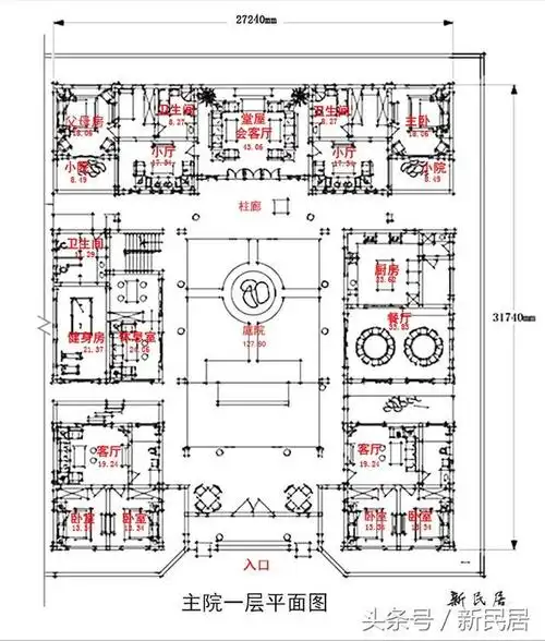
新民居案例带附院的中式四合院

15个俏皮纹身图案,可爱的小绿蛙,可能会把你的心萌化

blackpink成员lisabigbang太阳时隔10年再度合作

真人头像图片男生帅气冷酷霸气 超酷男生高清头像潮流图片大全