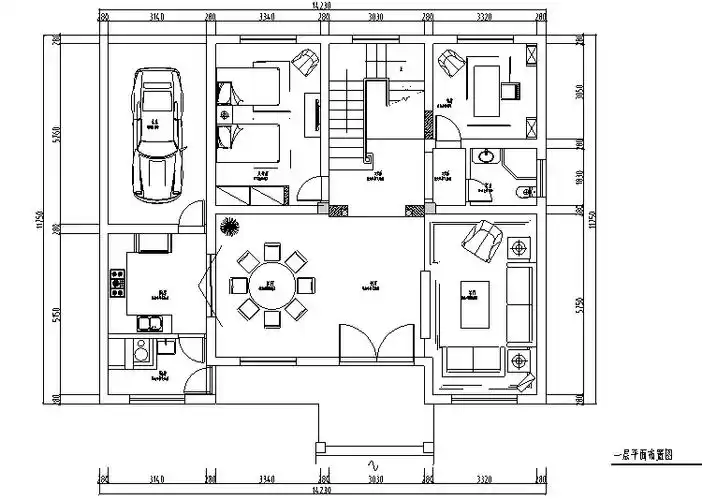
cad底图淡显处理诀窍及图纸对比

高清图片下载 免费 安全无风险
cad底图淡显处理诀窍及图纸对比

cad底图淡显处理诀窍及图纸对比

点击图片查看原图

图片信息

  • 格式: JPG
  • 尺寸: 1080x904
  • 大小: 约1.2MB

版权声明

相关标签

自然风光 高清壁纸 4K画质

分享图片

相关推荐

基于当前图片的相似推荐

[分享]住宅建筑图纸cad资料下载

[分享]小型酒店设计cad平面图资料下载

分享| 农村别墅房屋设计cad改造图_图纸

cad2019新功能图纸比较快速找出图纸中不同

别墅卫生间装修cad资料下载-[成都]中德麓府别墅四合院cad平面图 3d

6层学生宿舍平面图资料下载-某四层学生宿舍楼混凝土结构施工图(cad)

cad2000本资料为某办公室精装饰装修全套cad施工图纸 办公室平面图

[分享]一套完整室内cad施工图资料下载

三层宿舍楼cad资料下载-三层砌体结构食堂及宿舍楼结构施工图纸

大型豪宅施工图设计家装施工详图新中式风格住宅cad平面布置

别墅(1-3层)图纸深度:施工图 项目位置:江苏 图纸格式:jpg,cad2000

38套完整家装cad施工图纸,外加施工图设计小知识!

随机推荐

发现更多精彩图片

杨紫魅力造型合集:艳丽多彩,可爱迷人

回顾演员徐松子与导演丈夫分居15年有泪有痛67岁无儿无女成遗憾

张书范老师为张晋道长书画作品题字

北宋定窑白釉刻划龙纹玉壶春瓶

人生的幸福莫过于有人信任有人懂得有人陪你有人等你小林漫画什么

5月17日温州苍南再次相约《白兔记》#浙江小百花越剧团 #文 - 抖音

擎天柱 变形金刚3:月黑之时 壁纸 - 1366x768

王者荣耀/司马懿头像 下期出谁,评论区说王者荣耀司马懿 王者荣耀