放弃不难但坚持一定很酷拼搏励志墙贴摆件生日礼物古风中国风宿舍

高清图片下载 免费 安全无风险
放弃不难但坚持一定很酷拼搏励志墙贴摆件生日礼物古风中国风宿舍

放弃不难但坚持一定很酷拼搏励志墙贴摆件生日礼物古风中国风宿舍

点击图片查看原图

图片信息

  • 格式: JPG
  • 尺寸: 793x793
  • 大小: 约1.2MB

版权声明

相关标签

自然风光 高清壁纸 4K画质

分享图片

相关推荐

基于当前图片的相似推荐

非主流经典文字古诗词古典水墨画背景桌面壁纸(一)

文字/句子/语录/情感/治愈/励志/伤感/古风/青春/手机壁纸/锁屏壁纸

哲理励志名言古风图片

加油↖(^ω^)↗励志清新文字唯美壁纸古风

文字 励志 句子 古风

文字/句子/语录/情感/治愈/励志/伤感/古风/青春/手机壁纸/锁屏壁纸

中国经典中国知名企业家励志语录培训教材卓越管理者的为人处世

壁纸ll自制ll励志文字壁纸part5(古风)

关键词 : 励志,初心,毛笔字

原创设计 |3组励志诗句古风文字壁纸套图 "追风赶月莫停留,平芜尽处是

文字/句子/语录/情感/治愈/励志/伤感/古风/青春/手机壁纸/锁屏壁纸

随机推荐

发现更多精彩图片

【肖战×鞠婧祎】梦 | 穿越千年的拯救

路字行书写法_路行书怎么写好看_路书法图片_词典网

二次元·暗系情侣头像:这个世界,不过是一场华丽的闹剧!

江诗丹顿traditionnelle陀飞轮三问表

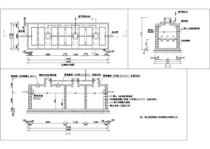
某地砖砌化粪池cad扩初图,可编辑(13号砖砌化粪池,无地下水,不过车

g小调小步舞曲(选自《巴斯蒂安世界钢琴名曲集1》)-巴赫

airbus a320 (n218nv) - november 2016 - concord regional airport

绝地求生刺激战场海岛载具提取攻略,车库必刷路边机率大

灰色花印红色手绘花朵装饰画1

魔尺24段◎形96 - 抖音

霞光辉映,这组剪影定格了军人最帅的姿态